DL型水膜脫硫除塵器

一、結構與原理
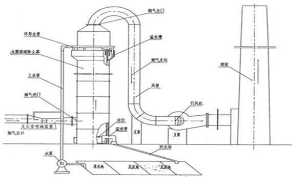
脫硫除塵器主要由筒體、上部注水槽、下部溢水孔、清理孔等組成。其工作原理是:含塵氣流通進入筒體,筒體是一個圓形筒體,水從除塵器上部注水槽進入筒內,使整個圓筒內壁形成一層水膜從上而下流動,煙氣由筒體下部切向進入,在筒體內旋轉上升,含塵氣體在離心力作用下始終與筒體內壁面的水膜發生摩擦,這樣含塵氣體被水膜濕潤,塵粒隨水流到除塵器底部,從溢水孔排走,在筒體底部封底并設有水封槽以防止煙氣從底部漏出,有清理孔便于進行筒體底部清理。除塵后廢水由底部溢流孔排出進入沉淀池,沉淀中和,循環使用。凈化后的氣體,通過筒體上部椎體部分引出,從而達到除塵目的。在循環池中加入堿液,可起到很好的脫硫效果。
二、主要技術性能和參數
除塵效率:>
脫硫效率:≥85%
林格曼黑度:<1級
煙速:17~23m/s
煙氣空塔流速:3.2~4.2 m/s
溢流槽靜壓:2~5mmH2O
設備阻力:600~900Pa
設備機械設計壓力:﹣1000~+5000 Pa
漏風率:<1%
除塵后煙氣溫度:50~80℃
三、工藝流程圖



電話
短信
地圖
微信